Чтение онлайн

на главную - закладки

Жанры

Странный дом
Шрифт:

Автор: Вот как? Тебя смутило что-то еще, кроме загадочного пространства?

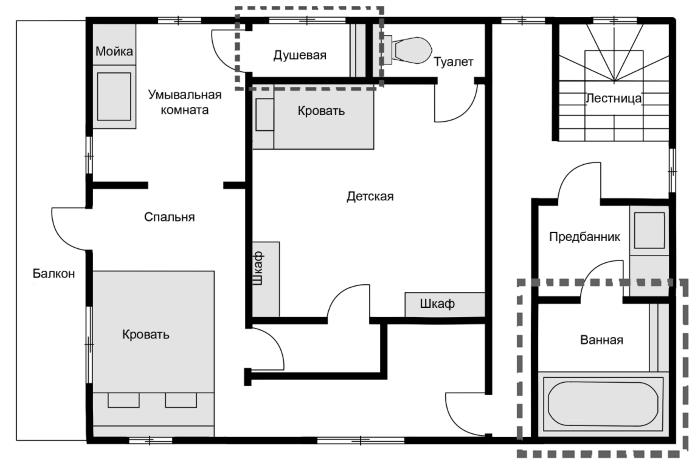
Курихара: Да, планировка второго этажа. Взгляни на детскую. Ничего не замечаешь?

Автор: Хм-м-м… Что, две двери?.. В детскую ведет коридор, и с обоих его концов установлено по двери.

Курихара: Верно. И расположен он тоже странно. Допустим, ты поднялся на второй этаж. Чтобы попасть в детскую, тебе придется сделать крюк и обойти пол-этажа. Ужасно неудобно, тебе не кажется?

Автор: И правда.

Курихара: А еще в этой комнате нет ни одного окна.

Действительно, на плане в стенах детской я не увидел ни одного значка, обозначающего окно.

Курихара: Обычно родители, наоборот, просят проектировщиков продумать планировку таким образом, чтобы в детскую попадало как можно больше солнечного света. А чтобы ребенку сделали комнату совсем без окон… Такого я еще никогда не видел.

Автор: Может, этому есть какое-то объяснение? Например, у ребенка кожное заболевание, и солнечный свет ему вреден.

Курихара: В таком случае окна достаточно просто занавесить. Совсем отказываться от них – это странно, даже ненормально.

Автор: Ясно.

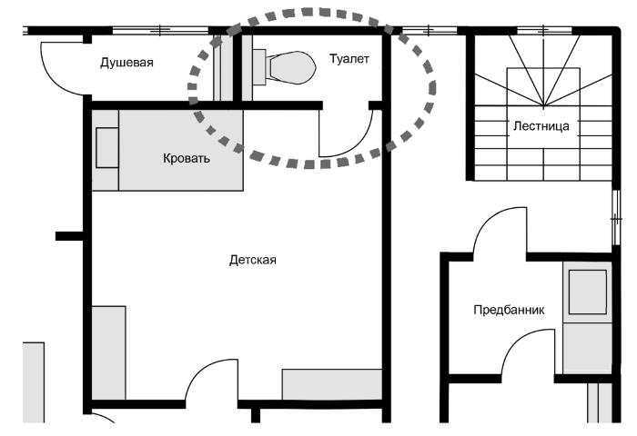
Курихара: К тому же в этой комнате есть еще одна непонятная деталь. Посмотри на туалет. Судя по расположению двери, в него можно попасть только из детской.

Автор: И правда. Получается, у ребенка был отдельный туалет?

Курихара: Похоже на то.

Автор: Комната без окон и с отдельным туалетом. А чтобы войти в нее, нужно пройти через коридор, по обеим концам которого установлены двери… Звучит как описание тюремной камеры.

Курихара: Да, даже для родителей, склонных к гиперопеке, это перебор. От планировки так и веет желанием полностью контролировать ребенка. Может быть, его даже держали в детской взаперти.

Автор: Значит, ребенок подвергался жестокому обращению…

Курихара: Не исключено. Скажу больше: по-моему, родители не хотели, чтобы их ребенка кто-то увидел. Взгляни еще раз на план второго этажа. Тебе не кажется, что все комнаты расположены так, чтобы скрыть наличие детской? К тому же в ней нет окон. Получается, увидеть ребенка с улицы было невозможно. Можно предположить, что родители держали его под замком и скрывали от окружающих сам факт его существования.

Второй этаж

Автор: Но зачем?

Курихара: Не знаю. Но судя по планировке, в этом доме творилось что-то ужасное.

Две ванные

Курихара: Кстати, рядом с детской расположена спальня…

Автор: Ты про комнату с двуспальной кроватью? Наверное, это спальня родителей, да?

Курихара: Да, скорее всего. Она просторная, в отличие от детской. И окон там много.

Мне вспомнились, как Янаока назвал этот дом «светлым и просторным».

Курихара: Но, честно говоря, в ней меня тоже кое-что смущает. В верхней части плана изображена душевая. Получается, умывальная комната играет роль предбанника [1] , но при этом она полностью просматривается из спальни.

Автор: И правда, двери-то нет.

1

В традиционном японском доме ванная комната обычно разделяется на две зоны: предбанник, где нужно раздеться и оставить одежду перед водными процедурами, и собственно ванна или душевая. (Здесь и далее прим. пер.)

Курихара: Согласись, в этом мало приятного: раздеваться или выходить из душа, пока на тебя кто-то смотрит. Пусть даже муж или жена. Может, конечно, эти двое были настолько близки… Какая-то жуткая картина вырисовывается: родители не чают души друг в друге, но при этом держат собственного ребенка под замком. Хотя, может быть, я накручиваю.

Автор: Ну да… Ой, ого!

Курихара: Что такое?

Автор: Кроме душевой на втором этаже есть еще ванная комната. Это ведь тоже необычно?

Второй этаж

Курихара: Ну, не могу сказать, что это что-то из ряда вон, но такая планировка действительно встречается крайне редко. Кстати, в ванной тоже ни единого окна. Зато в душевой есть одно, почти во всю стену.

Автор: И правда. Выходит, все-таки этот дом какой-то жутковатый… Как ты считаешь, лучше его не покупать?

Курихара: Конечно, нельзя делать однозначные выводы на основе одной только планировки, но… На месте твоего знакомого я бы поискал другой вариант.

Я поблагодарил Курихару и положил трубку. А потом снова принялся разглядывать план и живо представил ребенка, заточенного в комнате без окон, в то время как родители безмятежно спят в своей кровати.

Второй этаж

Первый этаж

Затем я решил сравнить планы первого и второго этажей. Если смотреть только на первый этаж, то можно решить, что это совершенно обычный дом. Не считая, конечно, загадочного пустого пространства. Кстати о нем… Курихара предположил, что это просто дополнительное помещение для хранения, в которое не стали проделывать дверь. Но что, если он ошибся?

Поделиться:
Популярные книги

Кодекс Охотника. Книга XVII

Винокуров Юрий
17. Кодекс Охотника
Фантастика:
фэнтези
попаданцы
аниме
5.00
рейтинг книги
Кодекс Охотника. Книга XVII

На границе империй. Том 9. Часть 5

INDIGO
18. Фортуна дама переменчивая
Фантастика:
космическая фантастика
попаданцы
5.00
рейтинг книги
На границе империй. Том 9. Часть 5

Адвокат Империи 8

Карелин Сергей Витальевич
8. Адвокат империи
Фантастика:
городское фэнтези
альтернативная история
аниме
дорама
фантастика: прочее
попаданцы
5.00
рейтинг книги
Адвокат Империи 8

Боярич Морозов

Шелег Дмитрий Витальевич
3. Наследник старого рода
Фантастика:
героическая фантастика
боевая фантастика
альтернативная история
7.12
рейтинг книги
Боярич Морозов

Моров. Том 7

Кощеев Владимир
6. Моров
Фантастика:
альтернативная история
аниме
фэнтези
попаданцы
5.00
рейтинг книги
Моров. Том 7

Имя нам Легион. Том 17

Дорничев Дмитрий
17. Меж двух миров
Фантастика:
боевая фантастика
рпг
аниме
5.00
рейтинг книги
Имя нам Легион. Том 17

Чужак из ниоткуда

Евтушенко Алексей Анатольевич
1. Чужак из ниоткуда
Фантастика:
попаданцы
альтернативная история
5.00
рейтинг книги
Чужак из ниоткуда

Вперед в прошлое 8

Ратманов Денис
8. Вперед в прошлое
Фантастика:
попаданцы
альтернативная история
5.00
рейтинг книги
Вперед в прошлое 8

Черный Маг Императора 12

Герда Александр
12. Черный маг императора
Фантастика:
юмористическое фэнтези
попаданцы
аниме
сказочная фантастика
фэнтези
5.00
рейтинг книги
Черный Маг Императора 12

Законы Рода. Том 8

Андрей Мельник
8. Граф Берестьев
Фантастика:
юмористическое фэнтези
аниме
фэнтези
5.00
рейтинг книги
Законы Рода. Том 8

Кай из рода красных драконов 3

Бэд Кристиан
3. Красная кость
Фантастика:
попаданцы
альтернативная история
5.00
рейтинг книги
Кай из рода красных драконов 3

Революция

Валериев Игорь
9. Ермак
Фантастика:
боевая фантастика
попаданцы
альтернативная история
5.00
рейтинг книги
Революция

Законы Рода. Том 10

Андрей Мельник
10. Граф Берестьев
Фантастика:
юмористическая фантастика
аниме
фэнтези
5.00
рейтинг книги
Законы Рода. Том 10

Охотник за головами

Вайс Александр
1. Фронтир
Фантастика:
боевая фантастика
космическая фантастика
5.00
рейтинг книги
Охотник за головами